Развернуть карту

м, 220000000 руб.

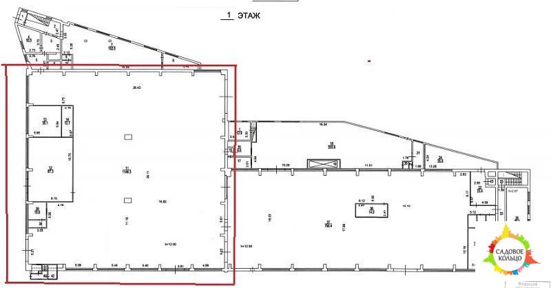
  • Общая площадь, м²1296.0

Лот:. м. Шоссе Энтузиастов, ул. Электродная, д. 8, продается производственное помещение 1296,2 кв.м., 1-й этаж, высота потолка 12 м, 2 ворот, в помещении установлены 2 действующие кран-балки грузоподьемностью 10 т. каждая, пол бетон, 150 кВт, без отопления (возможно поставить), вода, канализация, бытовые помещения (отапливаются). Участок в аренде. Продажа в собственность, цена (торг). АГЕНТАМ ПРОСЬБА НЕ ЗВОНИТЬ.



220000000 руб. | 3332924 $ | 2920801 €

Михаил

+7 (926) 103-40-44

+7 (925) 542-76-79

Изменено: 30 Jan 2026, 14:55:02