Развернуть карту

Продажа торгового помещения, Большая Калитниковская улица, 29558000 руб.

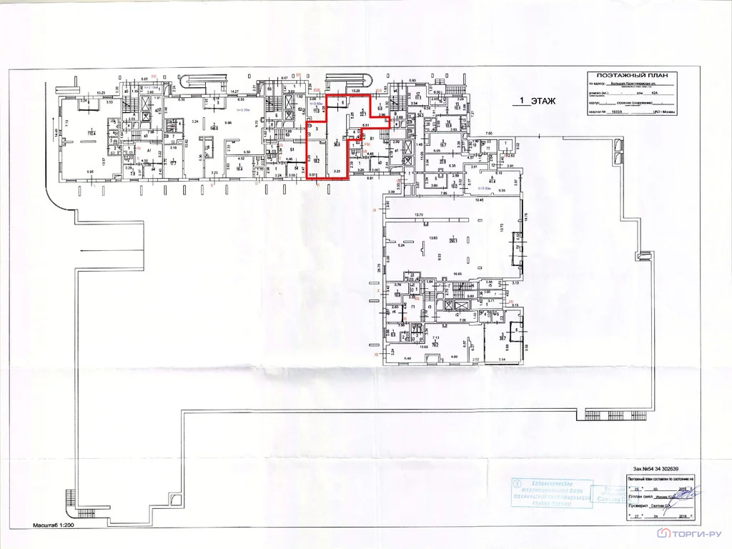
  • Общая площадь, м²94.7
Адрес: Москва, Большая Калитниковская улица, 42А

.
Нежилое помещение, 94,7 м | Центральный административный округ, Большая Калитниковская ул., д. 42А, этаж 1, помещение 3/1 (VI) | Метро: Римская (пешком 17 мин., транспортом 17 мин., расстояние 1.18 км)

Характеристики:
Функциональное назначение: Свободное
Тип входа: Отдельный



29558000 руб. | 447794 $ | 392423 €

Аукционный Дом "ТОРГИ-РУ"

+7 (922) 204-22-27

Изменено: 15 Apr 2026, 15:35:58