Развернуть карту

Продажа торгового помещения, ул. Клинская, 24471000 руб.

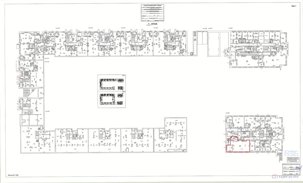
  • Общая площадь, м²107.0

.
Нежилое помещение, 107 м | Северный административный округ, Клинская ул., д. 2А, этаж 1, помещение 70Н | Метро: Грачёвская (пешком 7 мин., транспортом 7 мин., расстояние 0.36 км)

Характеристики:
Функциональное назначение: Свободное
Тип входа: Отдельный



24471000 руб. | 370727 $ | 324886 €

Аукционный Дом "ТОРГИ-РУ"

+7 (922) 117-66-67

Добавлено: 14 Apr 2026, 17:35:21