Развернуть карту

Продажа торгового помещения, ул. Маршала Савицкого, 12177900 руб.

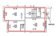
  • Общая площадь, м²81.5

.
Нежилое помещение, 81,5 м | Юго-Западный административный округ, ул. Маршала Савицкого, д. 4, корп. 1, этаж 1, пом. 6/1, комн. 1-6 | Метро: Бунинская Аллея (пешком 0 мин., транспортом 0 мин., расстояние 5.3 км)

Характеристики:
Функциональное назначение: Свободное
Тип входа: Отдельный



12177900 руб. | 184491 $ | 161678 €

Аукционный Дом "ТОРГИ-РУ"

+7 (922) 204-22-27

Изменено: 15 Apr 2026, 19:44:40