Развернуть карту

Продажа торгового помещения, ул. Клинская, 27055000 руб.

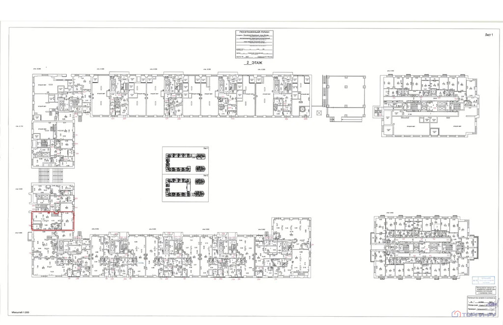
  • Общая площадь, м²97.8

.
Нежилое помещение, 97,8 м | Клинская ул., д. 2А, этаж 2, помещение 12Н | Метро: Грачёвская (пешком 7 мин., транспортом 7 мин., расстояние 0.36 км)

Характеристики:
Функциональное назначение: Свободное
Тип входа: Отдельный



27055000 руб. | 409874 $ | 359192 €

Аукционный Дом "ТОРГИ-РУ"

+7 (922) 117-66-67

Добавлено: 14 Apr 2026, 17:30:26