Развернуть карту

Продажа торгового помещения, 6-я Радиальная улица, 12955000 руб.

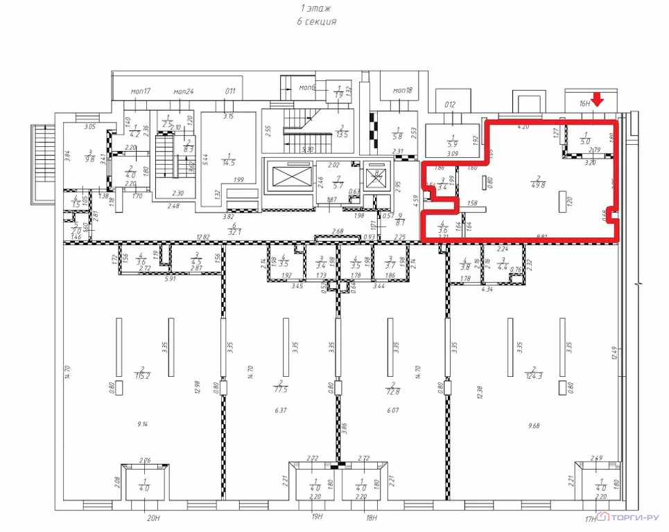
  • Общая площадь, м²61.8
Адрес: Москва, 6-я Радиальная улица, 7/1к1

.
Нежилое помещение, 61,8 м | ЮАО, 6-я Радиальная ул., д. 7/1, корп. 1, этаж 1, пом. 16Н | Метро: Царицыно (пешком 39 мин., транспортом 34 мин., расстояние 1.68 км)

Характеристики:
Функциональное назначение: Свободное
Тип входа: Отдельный



12955000 руб. | 196264 $ | 171995 €

Аукционный Дом "ТОРГИ-РУ"

+7 (922) 117-66-67

Добавлено: 26 Feb 2026, 15:28:48