Развернуть карту

м, 54500000 руб.

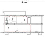
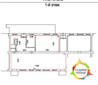
  • Общая площадь, м²298.0

Лот:. м. Филевский парк, ул. Минская д. 22, от метро 3 мин. пешком, продается помещение площадью 298 кв.м. 1-й этаж - 150 кв.м. и подв. - 148 кв.м. 3 отд. входа. 1 этаж площадь сдана в аренду под Ozon, стоматология. Подвал под «Квест». МАППродажа в собственность, цена АГЕНТАМ ПРОСЬБА НЕ ЗВОНИТЬ.



54500000 руб. | 825656 $ | 723562 €

Михаил

+7 (926) 103-40-44

+7 (925) 542-76-79

Добавлено: 12 Dec 2025, 03:20:02