

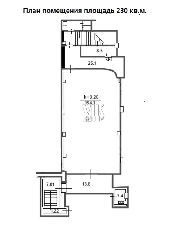
Продается нежилое помещение свободного назначения в г Москве район Братеево по ул Ключевая дом 22 корпус 2. Помещение расположено на цокольном этаже отдельно стоящего двухэтажного панельного дома, построенного в 1998г. Общая площадь 230кв.м, с интересной и функциональной планировкой (на данный момент используется под ресторан, банкетный зал на 120 посадочных мест): два отдельных благоустроенных входа с зоной разгрузки; пологие лестницы; холл 15кв.м с гардеробной; зал 155кв.м с двумя входами на кухню; в кухонной зоне 26кв.м установлена электроплита мощностью 380 кВт, большой мангал с вытяжкой, помещения для хранения продуктов; гостевой санузел и отдельный для персонала, два подсобных помещения от 7 до 8кв.м. Выполнен качественный ремонт в классическом стиле: входная группа отделана декоративным камнем и на стенах декоративная штукатурка с художественной росписью; пол выложен кафелем с мозаичным орнаментом; двойные фигурные потолки с точечными светильниками, цветной фоновой подсветкой, красивыми люстрами; на стенах в зале прекрасные живописные картины ручной работы; современные столы со стульями в изысканном убранстве; грамотно обустроен DJ подиум; просторная барная стойка; металлическая входная дверь. Кадастровый № 77:05:0012006:6145. Возможно купить дополнительное помещение, площадью 90кв.м (на данный момент используется под караоке-бар на 40 посадочных мест): Кадастровый № 77:05:0012006:6146. Высота потолков 3,2м. Все коммуникации- центральные, разрешённая электрическая мощность 150кВт, установлена приточно-вытяжная вентиляция. Продается готовый арендный бизнес с высокой доходностью, окупаемость менее 5 лет. Помещение возможно использовать под любой вид деятельности: офис, мастерскую, студию красоты, торговую точку, фитнес зал, квест-шоу, лазертаг. Отличное местоположение: много парковочных мест, густонаселенный жилой район, высокий пешеходный и автомобильный трафик. Развита инфраструктура района. Хорошее транспортное сообщение, 250 метров от метро Алма-Атинская. Полная стоимость в ДКП. Свободная продажа.