


г. Москва, СЗAO, ул. 3-я Хорошёвская, д. 2,
Объект находится в пяти минутах ходьбы от МЦК «Хорошёво»
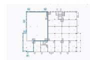
Площадь 510, 3 м2
Арендатор — &8203;Детейлинг-центр «Ultima Auto» ДДА до 31. 12.2025 г.
МАП 1,35 млн. руб.
1 этаж, Витринные окна
Свободная планировка
5 Отдельных входов
Высота потолка 3,7-8 м
Электричество 60 кВт
Общий ЗУ (в собственности)
Огороженная территория
Центральные коммуникации
Цена 145 млн. руб.
Собственность ФЛ.