Развернуть карту

Аренда помещения в ЖК Бунинские Луга, 24578 руб.

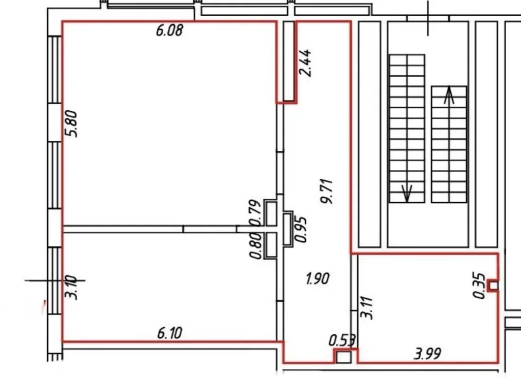
  • Общая площадь, м²83.0
  • Тип помещенияпомещение в жилом доме
  • Количество помещений1
Адрес: Москва, Проспект Куприна, 24к3

Аренда торгового помещения на первом этаже жилого дома. Густозаселенный новый жилой комплекс Бунинские Луга. Удачное расположение в ЖК, постоянный пешеходный трафик. Помещение справа от второго подъезда. Высокие потолки. Помещение без отделки. УСН. Подходит под широкий спектр деятельности. Арендные каникулы.



24578 руб. | 372 $ | 326 €

Прошин Андрей Витальевич

+7 (926) 404-44-30

Добавлено: 07 Dec 2025, 21:35:01