Развернуть карту

Аренда офиса, 2-я Мелитопольская улица, 12000 руб.

  • Общая площадь, м²642.5
  • Этаж2
  • Комнатстудия
Адрес: Москва, 2-я Мелитопольская улица, 4Ас39

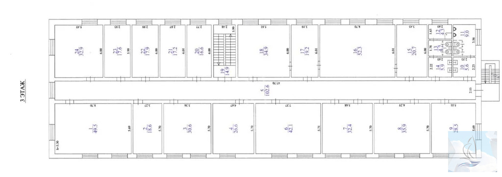
Этаж офисного здания 642.5 кв.м.

Предлагаются в аренду офисы по адресу: Россия, Москва, 2-я Мелитопольская улица, 4Ас39

Здание, 3 этажа, кабинетная планировка. Возможна аренда частями. По этажам или по офисам. Офисы от 16 кв.м.

Остановка общественного транспорта в 5 минутах ходьбы.

В офисах установлены кондиционеры. Есть общие уборные комнаты на каждом этаже.

Парковка: имеется большая парковка. Возможна парковка легковых и грузовых авто.

Входная группа: Имеется центральный вход и пожарная лестница.

Потолки: высота потолков 2,8 м.

Условия аренды: кв.м в год. с НДС. ( за кв.м. в мес с НДС)

Отдельно оплата электроэнергии. КУ включены в стоимость.

Обеспечительный платеж составляет одну арендную месячную плату. Предоставляются арендные каникулы на заезд.

Помещение свободно и готово для аренды.

Если возникли дополнительные вопросы, вы можете связаться по телефону. Доп фото по запросу.



12000 руб. | 182 $ | 159 €

Екатерина Шмакова

+7 (926) 092-66-15

Изменено: 17 Mar 2026, 15:45:01