Развернуть карту

Москва, 3-х комнатная квартира, Аминьевское ш. д.4Дк1, 27222330 руб.

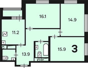
  • Общая площадь, м²78.7
  • Этаж6 из 25
  • Комнат3

.
Квартира, 3-комн., 78,7 м, Аминьевское ш., (м.Аминьевская) | Аминьевское ш., д. 4Д, корп. 1, этаж 6, кв. 255 | Метро: Аминьевская (пешком 3 мин., транспортом 4 мин., расстояние 0.22 км)

Характеристики:
Год постройки: 2021
Наличие лифта: Да
Наличие грузового лифта: Да
Этаж: 6
Количество комнат: 3
Площадь жилая: 46,9 м
Площадь кухни: 11,2 м
Наличие балкона: Нет
Наличие лоджии: Да
Высота потолков: 2,70 - 2,70 м
Количество санузлов: 2 санузла
Этажность дома: 25



27222330 руб. | 412409 $ | 361414 €

Аукционный Дом "ТОРГИ-РУ"

+7 (922) 117-66-67

Добавлено: 14 Apr 2026, 17:22:13


За те же деньги