Развернуть карту

Москва, 1-но комнатная квартира, улица Светланова д.11к1, 20652240 руб.

  • Общая площадь, м²45.6
  • Этаж14 из 17
  • Комнат1
Адрес: Москва, улица Светланова, 11к1

.
Квартира, 1-комн., 45,6 м, Западный административный округ, (м.Раменки) | Западный административный округ, ул. Светланова, д. 11, корп. 1, этаж 14, кв. 144 | Метро: Раменки (пешком 14 мин., транспортом 14 мин., расстояние 0.98 км)

Характеристики:
Год постройки: 2023
Наличие лифта: Да
Наличие грузового лифта: Да
Этаж: 14
Количество комнат: 1
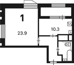
Площадь жилая: 23,9 м
Площадь кухни: 10,3 м
Наличие балкона: Нет
Наличие лоджии: Да
Высота потолков: 2,67 - 2,67 м
Количество санузлов: 1 санузел
Этажность дома: 17



20652240 руб. | 312874 $ | 274187 €

Аукционный Дом "ТОРГИ-РУ"

+7 (922) 117-66-67

Добавлено: 14 Apr 2026, 17:20:08


За те же деньги