Развернуть карту

Москва, 2-х комнатная квартира, Шекспира д.1к3, 21000000 руб.

  • Общая площадь, м²89.0
  • Цена в ДКППолная
  • Ипотекавозможна
  • Этаж4 из 4
  • Комнат2
  • Площадь комнат участвующих в сделке, м²10/10
  • Жилая площадь, м²20.0
  • Кухня, м²35.0
  • Статуссвободна
Адрес: Москва, Шекспира, 1к3

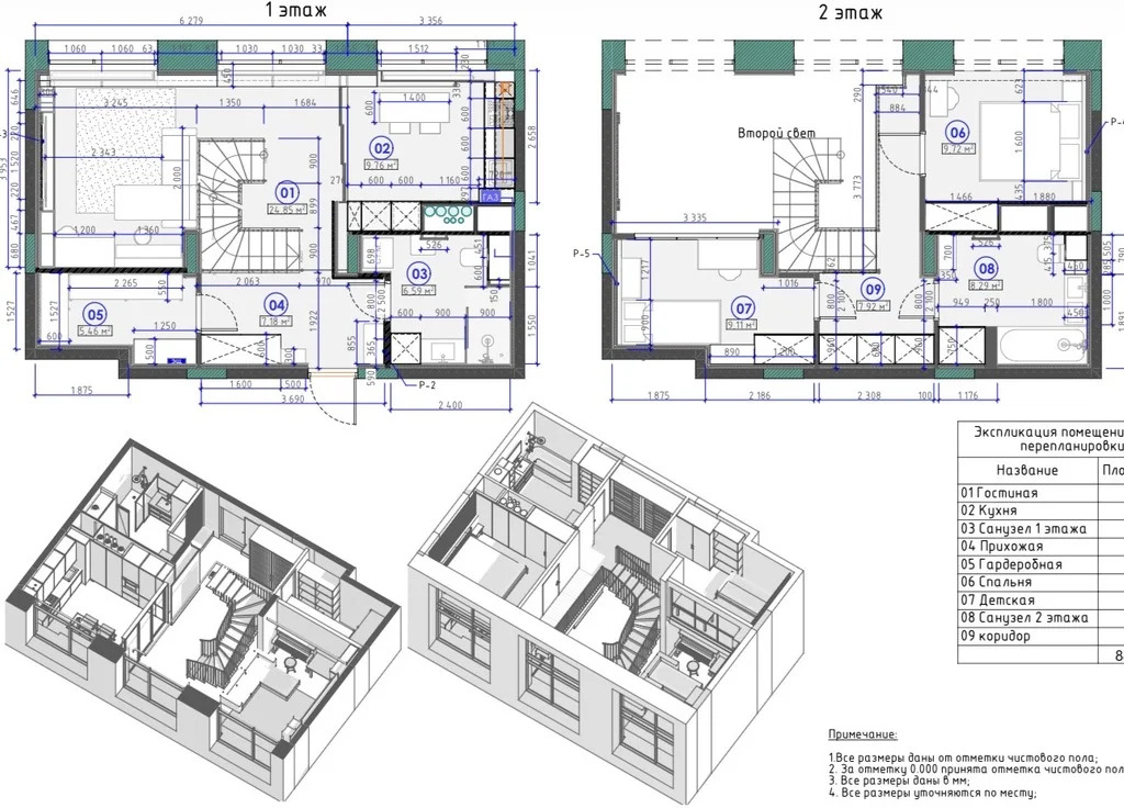
В свободной продаже двухуровневая квартира в ЖК Бристоль. В малоэтажной застройке. Развитая инфраструктура, рядом Аутлет, супермаркет, рестораны и т.д.
Планировка квартиры имеет второй свет. На первом уровне кухня-гостиная 35 кв.м., санузел, гардеробная. На втором уровне, две комнаты, санузел, выходящий на второй свет внутри квартиры. Выполнена стяжка пола на первом уровне, теплые полы, выровнены и оштукатурены стены, шумоизоляция, разведено электричество по квартире. Под чистовую отделку. Площадь указана на два уровня по дизайн-проекту. Несколько фотографий в фотогалерее с отделкой взяты из проекта.
Свободная продажа, один взрослый собственник. Приобреталась 4 года назад у Застройщика. Полная стоимость в договоре. Никто не прописан.



21000000 руб. | 318143 $ | 278804 €

Прошин Андрей Витальевич

+7 (926) 404-44-30

Добавлено: 03 Apr 2026, 19:25:12


За те же деньги