Развернуть карту

Москва, 2-х комнатная квартира, ул. Профсоюзная д.60/1, 28127400 руб.

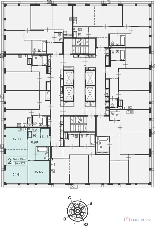
  • Общая площадь, м²77.7
  • Этаж23 из 26
  • Комнат2

.
Квартира. Договор долевого участия, 2-комн., 77,7 м, ЮЗАО | ЮЗАО, Профсоюзная ул., земельный участок 60/1, этаж 23, кв. 173

Характеристики:
Наличие лифта: Да
Наличие грузового лифта: Да
Этаж: 23
Количество комнат: 2
Площадь жилая: 40,07 м
Площадь кухни: 15,83 м
Наличие балкона: Нет
Наличие лоджии: Да
Высота потолков: 3,00 - 3,00 м
Количество санузлов: 2 санузла
Этажность дома: 26
Тип здания: Монолитный (бетонный)



28127400 руб. | 426120 $ | 373430 €

Аукционный Дом "ТОРГИ-РУ"

+7 (922) 117-66-67

Добавлено: 26 Feb 2026, 15:33:58


За те же деньги