Развернуть карту

Москва, 2-х комнатная квартира, ул. Родниковая д.4А, 17823900 руб.

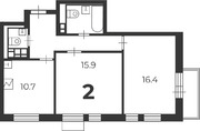
  • Общая площадь, м²57.0
  • Этаж17 из 22
  • Комнат2

.
Квартира, 2-комн., 57 м, ЗАО, (м.Боровское шоссе) | ЗАО, Родниковая ул., д. 4А, этаж 17, кв. 359 | Метро: Боровское шоссе (пешком 15 мин., транспортом 15 мин., расстояние 1.05 км)

Характеристики:
Год постройки: 2025
Наличие лифта: Да
Наличие грузового лифта: Да
Этаж: 17
Количество комнат: 2
Площадь жилая: 32,3 м
Площадь кухни: 10,7 м
Наличие балкона: Нет
Наличие лоджии: Да
Высота потолков: 2,70 - 2,70 м
Количество санузлов: 2 санузла
Этажность дома: 22
Тип здания: Монолитный (бетонный)



17823900 руб. | 270026 $ | 236637 €

Аукционный Дом "ТОРГИ-РУ"

+7 (922) 117-66-67

Добавлено: 26 Feb 2026, 15:33:38


За те же деньги