Развернуть карту

Москва, 3-х комнатная квартира, Аминьевское ш. д.4Дк1, 25978870 руб.

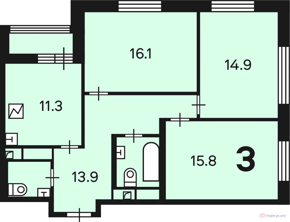
  • Общая площадь, м²78.7
  • Этаж2 из 25
  • Комнат3

.
Квартира, 3-комн., 78,7 м, ЗАО, (м.Аминьевская) | ЗАО, Аминьевское ш., д. 4Д, корп. 1, этаж № 2, кв. 222 | Метро: Аминьевская (пешком 4 мин., транспортом 4 мин., расстояние 0.22 км)

Характеристики:
Год постройки: 2021
Наличие лифта: Да
Наличие грузового лифта: Да
Этаж: 2
Количество комнат: 3
Площадь жилая: 46,8 м
Площадь кухни: 11,3 м
Наличие балкона: Нет
Наличие лоджии: Да
Высота потолков: 2,70 - 2,70 м
Количество санузлов: 2 санузла
Этажность дома: 25
Тип здания: Монолитный (бетонный)



25978870 руб. | 393571 $ | 344905 €

Аукционный Дом "ТОРГИ-РУ"

+7 (922) 117-66-67

Добавлено: 26 Feb 2026, 15:31:03


За те же деньги