Развернуть карту

Москва, 2-х комнатная квартира, ул. Базовская д.24Б, 15351000 руб.

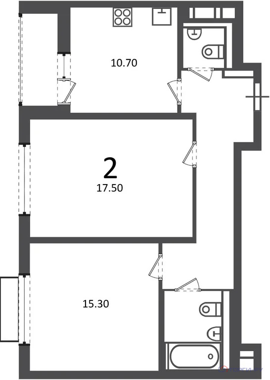
  • Общая площадь, м²59.5
  • Этаж16 из 20
  • Комнат2

.
Квартира, 2-комн., 59,5 м, САО (р-н Западное Дегунино, (м.Селигерская) | САО, р-н Западное Дегунино, Базовская ул., д. 24Б, этаж 16, кв. 117 | Метро: Селигерская (пешком 34 мин., транспортом 23 мин., расстояние 2.32 км)

Характеристики:
Год постройки: 2024
Наличие лифта: Да
Наличие грузового лифта: Да
Этаж: 16
Количество комнат: 2
Площадь жилая: 32,8 м
Площадь кухни: 10,7 м
Наличие балкона: Нет
Наличие лоджии: Да
Высота потолков: 2,70 - 2,70 м
Количество санузлов: 2 санузла
Этажность дома: 20
Тип здания: Монолитный (бетонный)



15351000 руб. | 232562 $ | 203806 €

Аукционный Дом "ТОРГИ-РУ"

+7 (922) 117-66-67

Добавлено: 26 Feb 2026, 15:28:17


За те же деньги