Развернуть карту

Москва, 2-х комнатная квартира, Причальный проезд д.10, 32950000 руб.

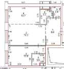
  • Общая площадь, м²65.6
  • Ипотекавозможна
  • Этаж15 из 33
  • Тип комнатраздельные
  • Комнат2
  • Площадь комнат участвующих в сделке, м²20/14
  • Жилая площадь, м²34.0
  • Кухня, м²15.0
  • Состояние ремонтабез ремонта
  • Количество санузлов1
  • Тип домаМонолитно-кирпичный
  • Лифтпассажирский
  • Статуссвободна
  • Вид права на собственностьдоговор купли/продажи

Продается 2-комнатная квартира с отделкой White box в премиальном ЖК Level Причальный (корпус «Восток»).

- ЗАО, Причальный проезд, 10к1
- ЖК Level Причальный, корпус Восток
- 15 этаж / частичный вид на Москва-реку
- Площадь: 65,6 м

Планировка:
- Кухня-гостиная
- Спальня с мастер-блоком и собственным санузлом
- Гостевой санузел
- Вместительные зоны хранения
- Панорамные окна

Отделка White box:

— Идеальная база для персонального дизайна
— Разводка электрики, стяжка, подготовка под чистовые покрытия

О комплексе:

- Современная архитектура
- Закрытая территория, охрана
- Подземный паркинг
- В пешей доступности Москва-река, набережная, школа, детский сад, кафе и спорт

- есть возможность приобретения с машиноместом

Полная стоимость в договоре, Быстрый выход на сделку, ключи на руках

ЖК Level Причальный находится на берегу Москвы-реки.
- На закрытой территории ЖК: парк с озеленением и местами отдыха, променад, летние веранды, спортивные площадки, шезлонги
- В комплексе: множество кафе, ресторан, супермаркет и специализированные магазины, медицинский центр и фитнес-клуб, магазин электроники и бытовой техники
- Круглосуточная система охраны и видеонаблюдения
- WI-FI покрытие в зоне лобби и на территории комплекса
- Скоростные лифты

ТРАНСПОРТНАЯ ДОСТУПНОСТЬ:
- 10 минут пешком до станции метро и МЦК Шелепиха
- 10 минут на машине до ТЦ Афимолл Сити, Поклонной горы, парка Фили
- 5 минут на машине до ТТК, до Москва-Сити - 10 минут и 13 минут до Садового кольца
- 13 минут на машине до станции метро Киевская, до Серебряного бора, парка Сказка
- 8 минут пешком до причала водного такси и речных трамвайчиков

Развитая инфраструктура района 9 фитнес-центров, государственные и частные поликлиники, 4 крупных парка, и многие другие объекты. В пешей доступности расположено 2 детских сада и 2 школы.



32950000 руб. | 499181 $ | 437456 €

Александр

+7 (929) 633-18-11

Добавлено: 12 Dec 2025, 11:30:01


За те же деньги