Развернуть карту

Москва, 2-х комнатная квартира, ул. Берзарина д.32, 27000000 руб.

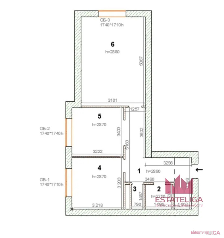
  • Общая площадь, м²54.3
  • Этаж8 из 25
  • Тип комнатраздельные
  • Комнат2
  • Площадь комнат участвующих в сделке, м²15.3/10.7
  • Жилая площадь, м²26.0
  • Кухня, м²10.1
  • Состояние ремонтакосметический
  • Количество санузлов1
  • Тип домаПанельный
  • Лифтпассажирский и грузовой
  • Статуссвободна

Id 56571. Продаётся светлая двухкомнатная квартира площадью 54,3 кв.м, расположенная на 8-м этаже 25-этажного дома в жилом комплексе "Октябрьское поле".

Планировка включает просторные комнаты 15,3 и 10,7 кв.м., потолки высотой 3,1 м. Окна выходят на две стороны, благодаря чему квартира наполнена естественным светом. Выполнена отделка от застройщика в светлых тонах.

Территория дома закрыта для посторонних, двор благоустроен и озеленён.

О жилом комплексе
Комплекс расположен в районе Щукино. В пешей доступности находятся парки: Серебряный бор, Ходынское поле, Щукинский парк и Покровское-Стрешнево. Район отличается развитой инфраструктурой — рядом Курчатовская школа, детские сады, Курчатовский институт, спортивные центры.

На первых этажах комплекса размещены коммерческие помещения. Двор свободен от автомобилей, обустроены детские и спортивные площадки, зоны отдыха. На территории предусмотрены собственные детские сады, школы, кружки и различные активности для жителей.

Входные группы выполнены с дизайнерской отделкой, предусмотрены уютные зоны ожидания и отдыха. Работает консьерж.

Транспортная доступность

Транспортная доступность

До станции метро "Октябрьское поле" — 15 минут пешком

До МЦК "Зорге" — 20 минут пешком

В 2026 году откроется станция метро "Бульвар Генерала Карбышева" в пяти минутах от ЖК

В 2027 году откроется станция метро "Серебряный бор"

Удобный выезд на проспект Маршала Жукова и Ленинградское шоссе, что обеспечивает быстрый доступ в центр города и выезд за его пределы

Вблизи комплекса расположены остановки общественного транспорта, откуда можно добраться до разных районов Москвы

Документы и условия продажи
Дом введён в эксплуатацию в 2024 году. Собственность оформлена. Один взрослый собственник. Свободная продажа. Полная стоимость в ДКП. Оперативный выход на сделку.



27000000 руб. | 409041 $ | 358462 €

Эстейтлига Раймонд

+7 (968) 564-54-94

Добавлено: 19 Feb 2026, 00:32:57


За те же деньги