Развернуть карту

Москва, 1-но комнатная квартира, ул. Путейская д.дом 2, 11990000 руб.

Объект недвижимости снят с реализации

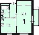
  • Общая площадь, м²44.0
  • Этаж3 из 16
  • Комнат1
  • Площадь комнат участвующих в сделке, м²21
  • Жилая площадь, м²21.0

Путейская улица, дом 2

Тип дома
Монолитные (бетонные)
Год постройки
2022
Парковка
Подземная
Наличие лифта
Да
Наличие грузового лифта
Да
Площадь объекта
44 м
Этажность дома
16
Этаж
3
Номер квартиры
192
Количество комнат
1
Ремонт
С отделкой
Площадь жилая
21,1 м
Площадь кухни
11,2 м
Наличие балкона
Нет
Наличие лоджии
Да
Высота потолков
2,70 - 2,70 м
Количество санузлов
1 санузел



За те же деньги