Развернуть карту

Москва, 2-х комнатная квартира, ул. Миллионная д.дом 3, корпус 1, 15166440 руб.

Объект недвижимости снят с реализации

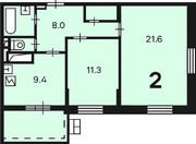
  • Общая площадь, м²55.8
  • Этаж2 из 13
  • Комнат2
  • Площадь комнат участвующих в сделке, м²32
  • Жилая площадь, м²32.0

Миллионная улица, дом 3, корпус 1


Тип дома
Монолитные (бетонные)
Год постройки
2020
Парковка
Наземная
Наличие лифта
Да
Наличие грузового лифта
Да
Площадь объекта
55,8 м
Этажность дома
13
Этаж
2
Номер квартиры
2
Количество комнат
2
Ремонт
С отделкой
Площадь жилая
32,9 м
Площадь кухни
9,4 м
Наличие балкона
Нет
Наличие лоджии
Да
Высота потолков
2,73 - 2,73 м
Количество санузлов
2 санузла



За те же деньги