Развернуть карту

Москва, 2-х комнатная квартира, ул. Бутлерова д.дом 2, корпус 2, 10358000 руб.

Объект недвижимости снят с реализации

  • Общая площадь, м²45.4
  • Этаж9 из 9
  • Комнат2
  • Площадь комнат участвующих в сделке, м²29
  • Жилая площадь, м²29.0

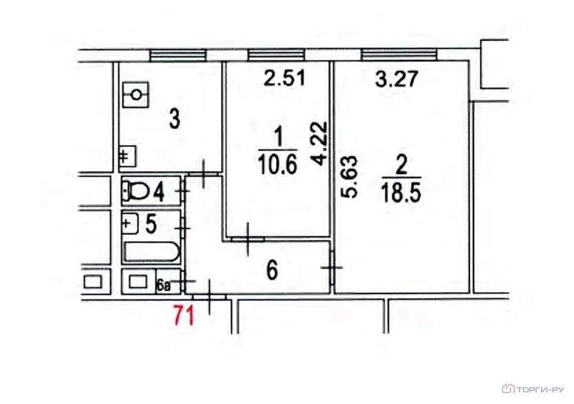
2-комн. квартира45,4 м, улица Бутлерова, дом 2, корпус 2

Тип дома:
Панельные
Год постройки:
1967
Парковка:
Наземная
Наличие лифта:
Да
Наличие грузового лифта:
Нет
Площадь объекта:
45,4 м
Этажность дома:
9
Этаж:
9
Номер квартиры:
71
Количество комнат:
2
Ремонт:
Требуется ремонт
Площадь жилая:
29,1 м
Площадь кухни:
6,7 м
Наличие балкона:
Нет
Наличие лоджии:
Нет
Высота потолков:
2,64 - 2,64 м
Санузел:
Раздельный
Количество санузлов:
1 санузел



За те же деньги