Москва, 4-х комнатная квартира, ул. Нижние Мневники д.д. 2, 141232000 руб.
141232000 руб. | 2139616 $ | 1875048 €
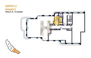
- Общая площадь, м²160.0
- Ипотекавозможна
- Этаж9 из 19
- Комнат4
- Площадь комнат участвующих в сделке, м²51.8
- Жилая площадь, м²51.8
- Кухня, м²45.9
- Балкон

- Количество санузлов2
- Тип домаМонолитно-кирпичный
- Лифтпассажирский
- Статусникто не прописан
Квартира: 4 к 160,00 кв.м., 9 этаж в комплексе Остров, 7 очередь, корп.2, сдача: 1кв. , этажей: 19, адрес Нижние Мневники ул., д. 2, Застройщик: Донстрой. Информацию о проектной декларации вы можете получить по контактному телефону указанному в объявлении.
141232000 руб. | 2139616 $ | 1875048 €