Развернуть карту

Москва, 2-х комнатная квартира, Открытое ш. д.30, 17500000 руб.

Объект недвижимости снят с реализации

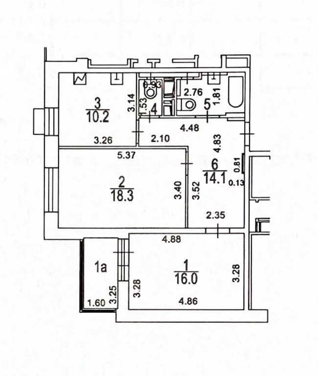
  • Общая площадь, м²64.6
  • Этаж2 из 25
  • Тип комнатраздельные
  • Комнат2
  • Площадь комнат участвующих в сделке, м²16/18.3
  • Жилая площадь, м²34.3
  • Кухня, м²10.2
  • БалконЛоджия
  • Состояние ремонтаевро-ремонт
  • Тип домаМонолит
  • Лифтпассажирский

ID 7611. Квартира с двумя изолированными спальнями. Улучшенный проект квартиры: увеличенные дверные проемы, лоджия. Высокий второй этаж, под квартирой находятся входные группы, нет коммерческих помещений, поэтому не будут размещены объекты инфраструктуры (ресторан, кафе, магазин).
Функциональная планировка: комнаты 16 и 18 кв.м., просторная кухня 10 кв.м., лоджия и два санузла.
Рядом с домом вход в национальный парк Лосиный Остров. Продуктовые магазины, аптеки, школы и детские сады находятся в шаговой доступности. Благоустроенный двор с детскими и спортивными площадками; подземный паркинг.
До метро “Бульвар Рокоссовского” удобно добираться на трамвае, остановка которого в 3 мин от дома. Комфортный выезд на ТТК и МКАД.
Два взрослых собственника, никто не зарегистрирован. Полная стоимость в договоре, быстрый выход на сделку.



За те же деньги