Развернуть карту

Москва, 3-х комнатная квартира, Карамышевская наб. д.2А, 40300000 руб.

Объект недвижимости снят с реализации

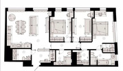
  • Общая площадь, м²107.3
  • Цена в ДКППолная
  • Этаж28 из 31
  • Комнат3
  • Площадь комнат участвующих в сделке, м²12.5/13.4/15.8
  • Жилая площадь, м²41.7
  • Кухня, м²33.7
  • Состояние ремонтабез ремонта
  • Статуссвободна

Видовая квартира в новом, современном ЖК УТЁСОВ, на берегу Москва-реки. Потрясающие панорамные виды на реку и Москва Сити. Монолитный дом. Квартира без отделки. Свободная планировка, нет ни одной несущей стены. Можно создавать любую планировку, под любые вкусы и требования. Высокие потолки. Площадь квартиры указана без учета площади балкона.
Есть дизайн-проект квартиры от ведущего дизайнера Москвы, а также проект элетро-разводки по квартире. Дизайн-проект и проект элетро-разводки в подарок покупателю.
По проекту - "еврочетырехкомнатная" (три отдельные спальни и кухня-гостиная. Совокупная площадь кухни и гостиной - 33.7 кв.м.) По проекту, в квартире три с/у. Количество окон позволяет создать планировку с четырьмя раздельными комнатами.
ЖК имеет свою инфраструктуру, супермаркет, спортзал, химчистка, аптека, салон красоты. Рядом сильные школы, детские садики и т.д. Охраняемая и закрытая территория, доступ на территорию по пропускам. Подземный паркинг. Есть два машиноместа, в стоимость не включены. Во дворе детская и спортивная площадки. Четыре скоростных лифта. Поэтому "очереди" к лифту нет никогда.
Идёт интенсивное благоустройство набережной. Удобное транспортное сообщение.
Один взрослый собственник. Полная стоимость в договоре. Приобреталась у Застройщика в 2016г. Свободная продажа. Никто не зарегистрирован. Без обременений.



За те же деньги