Развернуть карту

Москва, 1-но комнатная квартира, Открытое ш. д.14Д, 14900000 руб.

Объект недвижимости снят с реализации

  • Общая площадь, м²34.1
  • Ипотекавозможна
  • Этаж9 из 28
  • Тип комнатраздельные
  • Комнат1
  • Площадь комнат участвующих в сделке, м²9
  • Жилая площадь, м²9.0
  • Кухня, м²14.2
  • Состояние ремонтаевро-ремонт
  • Количество санузлов1
  • Тип домаМонолит
  • Лифтпассажирский и грузовой
  • ПарковкаОхраняемая парковка
  • Статусрасселение/разъезд
  • Вид права на собственностьдоговор уступки прав требования

Id 7036. Полная стоимость в договоре! Продается!
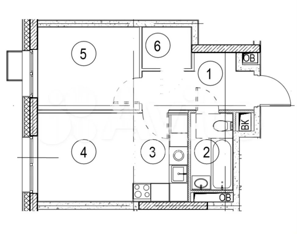
1-комнатная квартира (Евро-2) с чистовой отделкой в ЖК "Талисман". 34,13 кв.м, 9 этаж, вид в сторону ЖК "Преображение".
Всего 250 метров до метро и мцк "Бульвар Рокоссовского". Самая удобная ветка Московского метро. Время в пути до центра города - 20 минут.
Планировка: кухня-гостиная - 14,19 кв.м, спальня 9,18 кв.м, гардеробная, полноценная ванная комната. Потолки - 2.9 м.
Важно! Дом построен, скоро ключи. Отделка: выровнены и покрашены стены, установлены межкомнатные двери, розетки и выключатели. Потолок с точечным освещением. На полу ламинат и керамогранит с системой теплый пол. Ванная комната полностью укомплектована.
Внутреннее пространство комплекса продумано до мелочей. Дизайнерский ландшафт дворов и входных групп, зонирование пространства как для активного отдыха с площадками для спорта, так и для спокойного. В подземной части корпуса - паркинг с прямым доступом на лифте и индивидуальные кладовые. Богатая и развитая инфраструктура. В шаговой доступности: школы, детские сады, сетевые магазины, банки, мфц, кафе, салоны красоты и.т.д. Рядом - национальный парк "Лосиный остров". Недалеко - отремонтированный по программе мэра Москвы парк "Черкизово" и парк "Сокольники". Отличный вариант как для проживания, так и для сдачи в аренду.
Правовой статус: уступка права требования от физического лица.
На покупку этой квартиры есть возможность взять семейную льготную ипотеку или it.



За те же деньги