Развернуть карту

Москва, 2-х комнатная квартира, ул. Бакунинская д.60/2, 21500000 руб.

Объект недвижимости снят с реализации

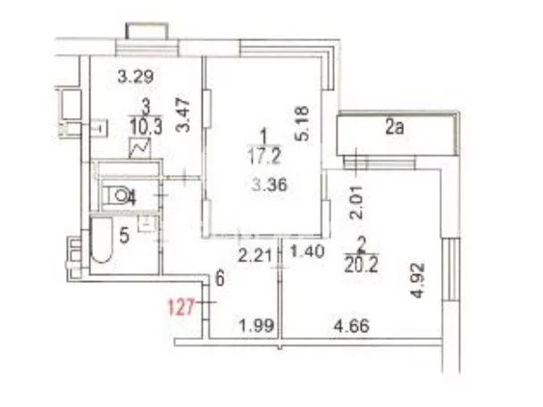
  • Общая площадь, м²61.7
  • Этаж14 из 15
  • Тип комнатраздельные
  • Комнат2
  • Площадь комнат участвующих в сделке, м²17.2/20.2
  • Жилая площадь, м²37.4
  • Кухня, м²10.3
  • БалконЛоджия
  • Состояние ремонтакосметический
  • Тип домаМонолит
  • Лифтпассажирский

Id 6895. Готовая квартира для сдачи в аренду в ЦАО! Или эта квартира отлично подойдет для личного проживания с детьми. В квартире две изолированные спальни и отдельная кухня! Главная изюминка этой квартиры в видах, что открываются из всех окон и лоджии. Окна ориентированы на юг и на восток!
В районе множество парковых ансамблей с прудами и зонами отдыха. В 13 минутах пешком ждет Версаль на Яузе. Лефортовский парк - оазис тишины и умиротворения, а за 21 минуту можно дойти до живописного Семеновского парка. На велосипеде доступны сад им. Баумана и Сокольники (15 минут). А также один из самых больших парков в столице — Измайловский (20 минут). Любителям воды будет приятно прогуляться по набережным: Рубцовской, Семеновской и Лефортовской.
Басманный район — один из наиболее благоустроенных с точки зрения инфраструктуры. Он дает широкие возможности для комфортной жизни, учебы и развития за счет расположения здесь необходимых социальных объектов. В пешей доступности от жилого комплекса - легендарный мгту им. Баумана, университет со 190-летней историей, Британский и Ломоносовский лицеи. А за 10 минут на автомобиле можно доехать до ниу вшэ и других престижных вузов. Напротив дома - одна из лучших школ района - Школа N 1429 имени Н. А. Боброва.
Сразу две станции метро в 15 минутах пешком — «Бауманская» и «Электрозаводская». Либо за 4 минуты можно до метро доехать на автобусах. Дойти пешком до метро можно через тихие дворики или по набережным Яузы. В 2023 г. планируется открытие станций Электрозаводская бкл и Ленинградско-Казанский мцд-3. Автомобилисты за 4 минуты смогут доехать до ТТК, за 8 - до Садового кольца, а через 15 минут будут в самом центре столицы.
Полная стоимость, свободная продажа, 1 собственник, он сам будет на сделке, без обременений!
Ключи на руках. Просмотры организую оперативно. Звоните!



За те же деньги