Развернуть карту

Москва, 3-х комнатная квартира, Дмитровское ш. д.107к4, 25500000 руб.

Объект недвижимости снят с реализации

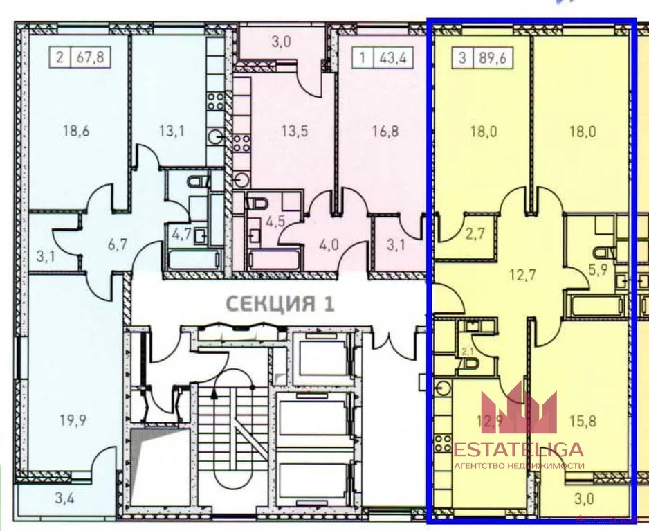
  • Общая площадь, м²89.6
  • Этаж20 из 24
  • Комнат3
  • Площадь комнат участвующих в сделке, м²15/18/18
  • Жилая площадь, м²51.8
  • Кухня, м²12.9
  • БалконЛоджия
  • Состояние ремонтабез ремонта
  • Количество санузлов1
  • Тип домаМонолит
  • Лифтпассажирский и грузовой
  • Статуссвободна

Id 32735. Продаётся трёхкомнатная квартира в ЖК "Летний сад"!

плюсы:
+ Скверы, парки с детскими площадками.
+ Большая территория для прогулок.
+ Подземный паркинг. Двор без машин.
+ Развитая инфраструктура комплекса.


про квартиру:
Квартира замечательной свободной планировки ! Можно воплотить любые идеи с ремонтом !
Всего три квартиры на этаже ! Единственный подъезд с таким преимуществом !
Шикарный вид из окна , на котором Вы действительно видите Москву !
Огромная гардеробная комната .
Также есть огромное комфортное машиноместо 20м для покупателей со скидкой .


про дом И инфраструктуру:
Дом в новом жилом комплексе, подземный паркинг, тихие соседи.
На территории комплекса расположены детская и спортивные площадки, парикмахерские, продуктовые магазины и аптеки. В комплексе есть детский сад и школы. В пешей 20-минутной доступности находится станция метро «Селигерская», в 2023 году в 4 мин ходьбы от жилого комплекса открывается станция метро «800-летия» .
Жилой комплекс «Летний Сад» расположен в развитом районе Москвы, так же район является одним из самый зеленых и комфортных для проживания жителей.

Звоните! На все дополнительные вопросы с удовольствием отвечу по телефону.



За те же деньги