Развернуть карту

Москва, 2-х комнатная квартира, Пресненская набережная д.10с2, 41500000 руб.

Объект недвижимости снят с реализации

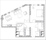
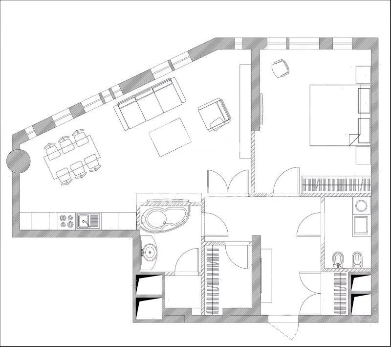
  • Общая площадь, м²81.7
  • Этаж11 из 22
  • Тип комнатраздельные
  • Комнат2
  • Площадь комнат участвующих в сделке, м²20/19
  • Жилая площадь, м²39.0
  • Кухня, м²14.0
  • Состояние ремонтаевро-ремонт
  • Тип домаМонолит
  • Статуссвободна
Адрес: Москва, Пресненская набережная, 10с2

Id 4693. Внимание, эксклюзив! Единственный евро-2 апартамент с 7(!) панорамными окнами и открытыми видами на Москва-реку. Подобной планировки вы больше не найдете! (см. фото). Лучшая башня в Сити - престижный iq квартал. Общая площадь 81,7м2: комфортная кухня-гостиная 34м2, отдельная спальня 19м2, два санузла (есть и ванна с гидромассажем, и душевая кабина) и гардеробная комната. Система климат-контроля дает возможность управлять не только температурой, но и влажностью воздуха (в других башнях Сити такого нет!). Выполнен дизайнерский ремонт по продуманному до мелочей проекту: использованы натуральные материалы и премиальные европейские бренды: сантехника Laufen (Швейцария), Jacob Delafon (Франция), освещение Eichholtz (Голландия) и т.п. Реализована собственная система пожарной безопасности, есть биокамин и даже потайной сейф. Применены системы очистки воды, автономное электроснабжение и отопление.
К апартаменту также предлагается машиноместо недалеко от лифта и с удобным выездом (продается отдельно).
Правовой статус: 1 взрослый собственник, свободная продажа, быстрый выход на сделку.



За те же деньги