

СВАО. Продаю 2-х к. квартиру р-н Лосиноостровский улица Малыгина дом 6. 3-х подъездный блочный дом 1976 года постройки(П-68). Отличный зеленый район с аккуратными дворами и развитой инфраструктурой. Рядом с домом несколько школ №763, 592, 1955. Район дома со всех сторон окружен парками. Парк "Таежный" в 3 минутах от дома. Джамгаровский парк с прудами 8 минут пешком Парк Торфянка с прудом - 15 минут пешком. Парк Бабушкинский - 25 минут пешком.
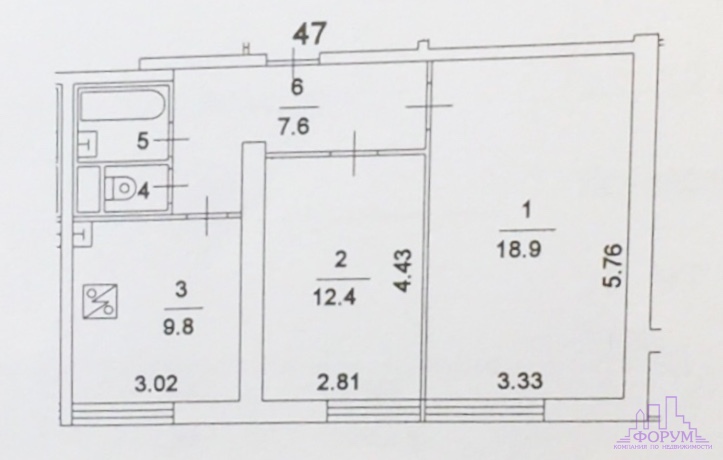
Состояние жилое. 11 этаж 12 этажного панельного дома. Общая площадь квартиры 51. 7 м, жилая 31. 3 м(комнаты раздельные 18. 9 м и 12. 4 м), кухня 9. 8 м, без балкона, коридор просторный 7. 6 м, с/узел раздельный, плита электрическая. Перепланировок нет. Дверь металлическая. Домофон. два лифта - пассажирский и грузовой. Мусоропровод. Двор благоустроен(парковочные места, детская площадка).
До ж/д Лось 4 минуты транспортом 15 минут пешком, до м.Медведково или Бабушкинская 20 минут на автобусе(605, 696,774). удобный выезд на МКАД, Ярославское и Осташковское шоссе.
1 собственик, в собственности с 2014 , свободная продажа, никто не прописан, полная стоимость в договоре